Bauträger aufgepasst! Grundstück mit Baubewilligung für 3 Wohnungen
Bauträger aufgepasst! Grundstück mit Baubewilligung für 3 Wohnungen
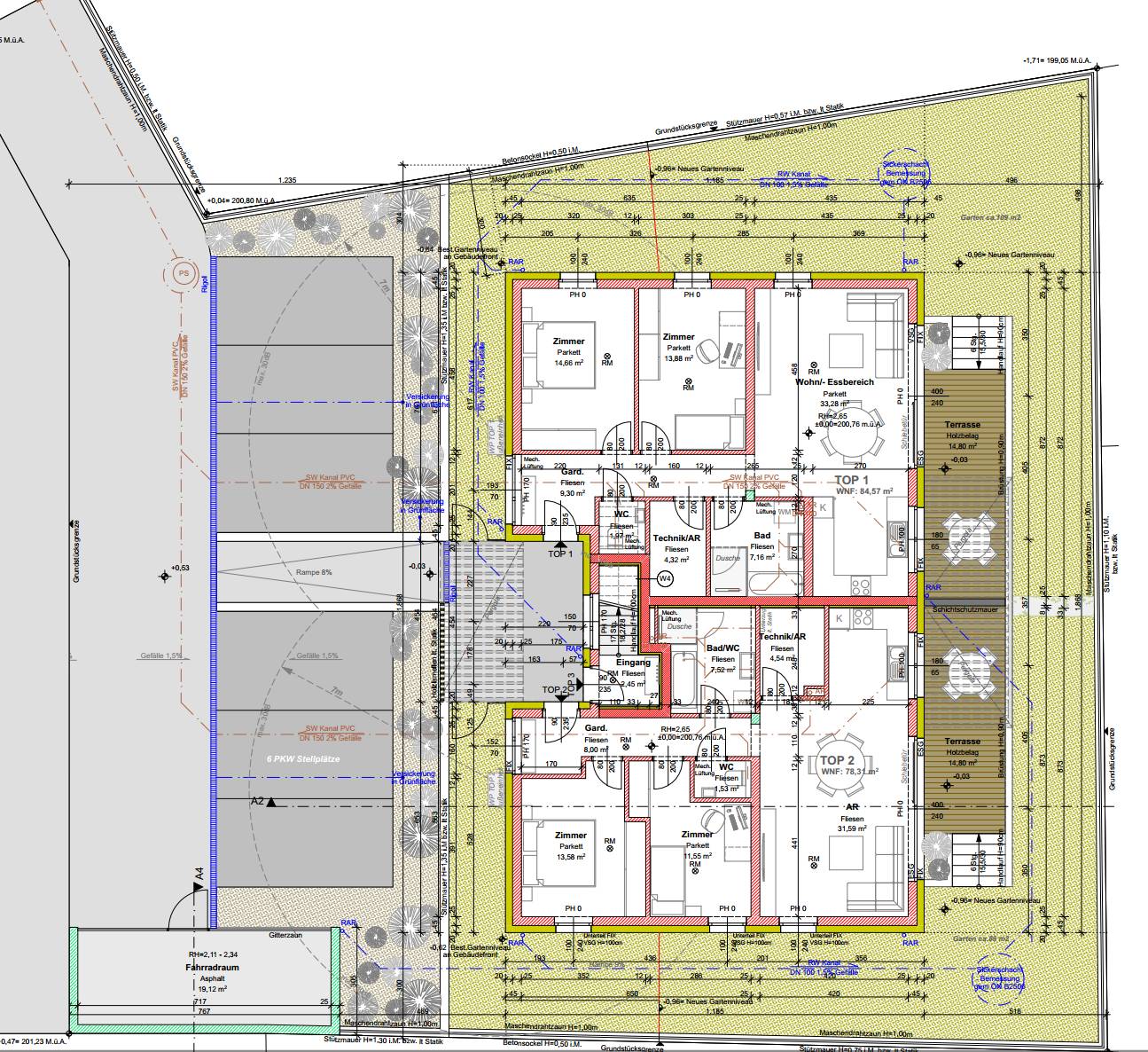
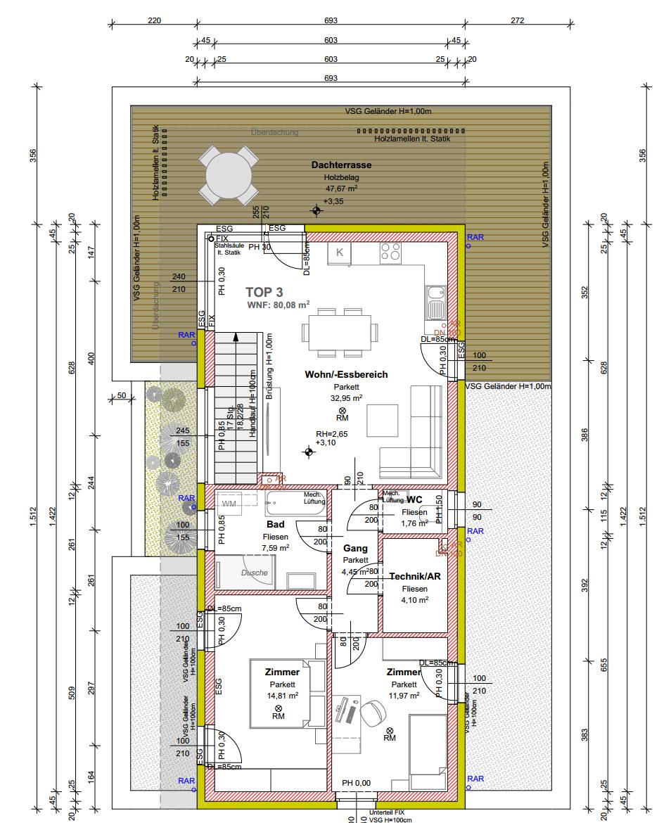
Top Gelegenheit für Bauträger Wir bieten ein Grundstück mit einem Projekt zum Bau eines Wohnhauses mit 3 Wohneinheiten mit bereits erteilter Baugenehmigung in der Gemeinde Edelstal zum Kauf an. Das Projekt liegt auf einem leicht abfallenden...
Detailangaben:
Zögern Sie nicht, uns zu kontaktieren
Ich möchte eine Besichtigung buchenWeitere Objekte
, Neusiedl am See, Edelstal, Kaufen
250.000,- €
283.500,- €
120.000,- €
150.000,- €
160.000,- €
137.000,- €
Das Angebot an Email verschicken
Besichtigungstermin vereinbaren
Ich will die vorteilhafteste Hypothek!
Wir arbeiten mit Profis zusammen und können Ihnen deshalb die Hypothek mit den besten Bedingungen besorgen, lassen Sie sich von uns ein Angebot schicken.
Zustimmung zur Verarbeitung personenbezogener Daten
Als betroffene Person, erkläre ich mich bis auf jederzeit möglichen Widerruf ausdrücklich damit einverstanden, dass das Unternehmen meinen Namen, meine Adresse, meine Telefonnummer und meine Email-Adresse an jene Person weitergibt, welche mit der Vermittlung eines Objektes, hinsichtlich dessen ich angefragt habe, betraut ist. Ich erkläre mich bis auf jederzeit möglichen Widerruf ausdrücklich damit einverstanden, dass mich diese Person kontaktiert und dass das Unternehmen meine personenbezogenen Daten nach den datenschutzrechtlichen Bestimmungen im Zeitraum von 180 Tagen ab meiner Anfrage im Rahmen der Immobilienvermittlung verarbeiten darf.








